Пишите, мы онлайн!
+7 (930) 428-63-82

Пн.-Пт.: с 09:00 до 19:00
Сб.: с 10:00 до 17:00

Проекты домов

Pin Up

площадь Абая, 132:

от 120 до 150м²

Площадь застройки:

от 155,5 до 206м²

площадь Достык, 146:

ул. Пушкина, 136м²

Количество спален:

3

Цена строительства:

от 3.200.000

Галерея проекта

Возможно поэтапное строительство

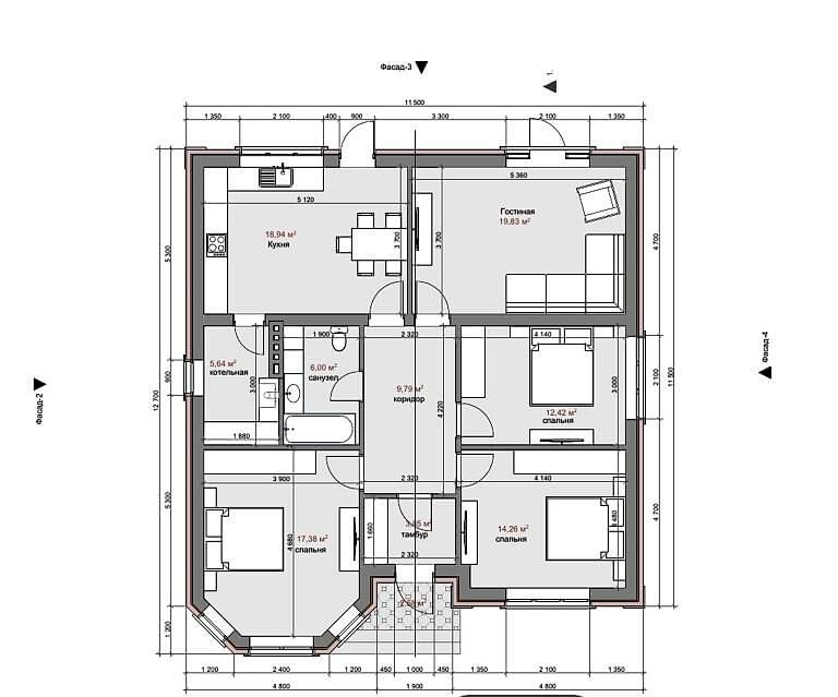
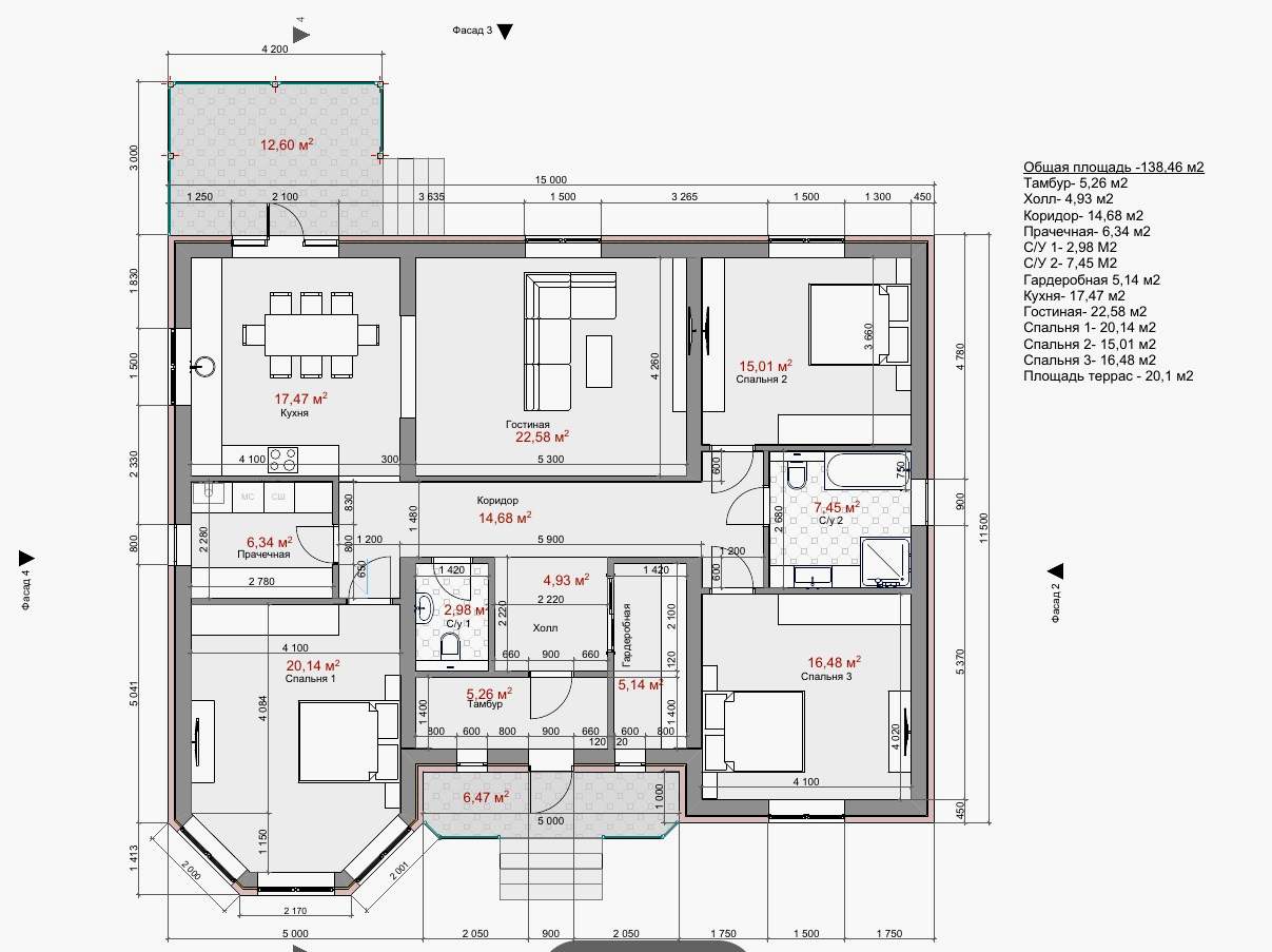
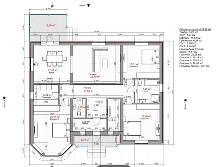
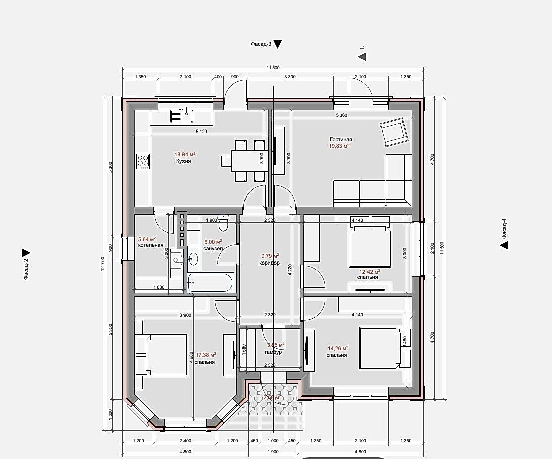
Планировки

Что может повлиять на цену?

Грунты и грунтовые воды

Подготовительные работы

Изменение конструктива и материалов

Расположение объекта

Заполните форму и мы свяжемся с Вами в ближайшее время

Готовы обсудить проект?

Ипотечные кредиты от 3%

Другие проекты

Смотреть все